【東久留米市野火止2丁目3期】3,980万円(税込) | 西武池袋線「清瀬」駅 徒歩15分 バス9分

東久留米市野火止2丁目3期
西武池袋線「清瀬」駅 徒歩15分 バス9分
西武新宿線「花小金井」駅 バス27分 
交 通 西武池袋線「清瀬」駅 徒歩15分 バス9分
西武新宿線「花小金井」駅 バス27分 
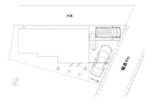
土地面積 91.59㎡
建物面積 72.90㎡(別途ロフト10.93㎡)
間取り 3LDK

この物件の魅力

 外 装 
・北側東側隣接建物なしの開放感!
・個性が光る、外観デザイン
・駐車スペース2台(車種限定)

 内 装 
・LDK13.8帖!L字型キッチンで広々使える
・リビング内階段でご家族の動きが見えて安心
・ロフト6.7帖は多目的に使える便利な空間
・ウォークインクローゼット、リビング収納、洗面所収納など収納たっぷり
・1階2階にトイレ付き

 学 区 
・本村小学校(徒歩約10分)
・久留米中学校(徒歩約7分)

周辺環境
・横浜・渋谷にも乗り換えなし!人気の西武池袋線「清瀬」駅まで徒歩15分
・人通り、車通り少ない落ち着いた環境
・周辺には、生活に便利な充実の施設
セブンイレブン4分、ファミリーマート4分、業務スーパー9分、生鮮市場TOP!11分、ウェルパーク7分、東久留米ショッピングセンタークルネ13分、、東久留米おひさま保育園17分、はくさん保育園24分、久留米神明幼稚園19分、久留米ヶ丘病院7分、竹丘病院9分、国立病院機構東京病院13分、野火止公園2分、竹丘ゆうゆう公園7分、中央図書館20分、東久留米小山郵便局4分、東久留米西高校10分、野火止地区センター2分etc…(全ておおよその徒歩)

【この物件のお問い合わせは】
042-464-2580
所在地東久留米市野火止2-12-22
建ぺい率/容積率建ぺい率40% 容積率80%
販売戸数/総戸数1戸 /1戸
建物構造木造サイディングスレート葺2階建
地目宅地
用途地域第一種低層住居専用地域
都市計画市街化区域
土地の権利所有権
完成予定日令和8年9月完成予定
入居可能予定日相談
接面道路東側幅員4m(公道)
国土法届出不要
設備人造大理石シンクシステムキッチン・浄水器内蔵シャワー混合水栓・音響システム付き浴室(乾燥機能付き)・高断熱浴槽・エコジョーズ・1階2階ウォシュレット付トイレ・全室照明付・ カラーTVインターホン・シャンプードレッサー三面鏡洗面台・ロフト・住宅用火災警報機 ・1階サッシにはシャッター又は面格子・階段手摺り・高性能樹脂窓・Low-E複合ガラス・24時間換気システム・オープン外構・基礎パッキン工法・ベタ基礎・外壁は通気工法 ・構造面材利用
設備電気・公営水道・公共下水・都市ガス
取引態様売主(仲介手数料無料)
建築確認番号第25UDI1T建05390号
10年保証(財団法人住宅保証機構)あり
公庫融資フラット35S利用可
施工主ダイワ住販 TEL:042-464-2580
【この物件のお問い合わせは】
042-464-2580